410-730-3939
Home Designs
Home Designs
Customize
Gallery
Locations
Locations
Currently Available
Future Sites
Build On Your Lot
About
About
Dare To Compare
Manufacturers
Awards & Recognition
History & Past Projects
Testimonials
Realtors
Blog
Contact
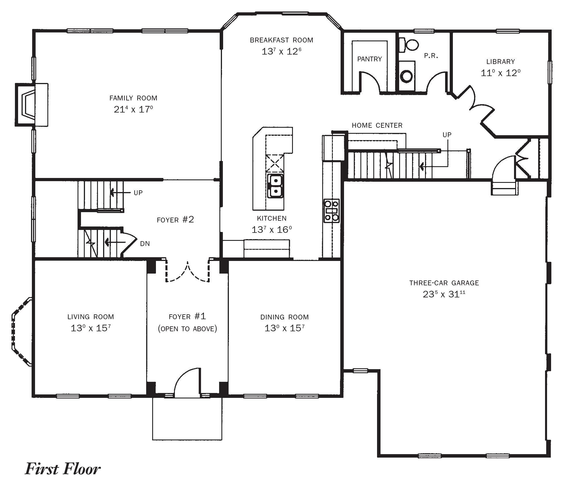
The Mayfair